House of Books and Blocks








Typology : Residence
Location : Bangalore
Team : Pavithra K V, CK
Status : Ongoing
Year of commencement : 2025
“House of Books and Blocks” evokes the image of a place where stories and knowledge are shared. This home is designed as a destination for the mind and soul, with the library serving as its heart.
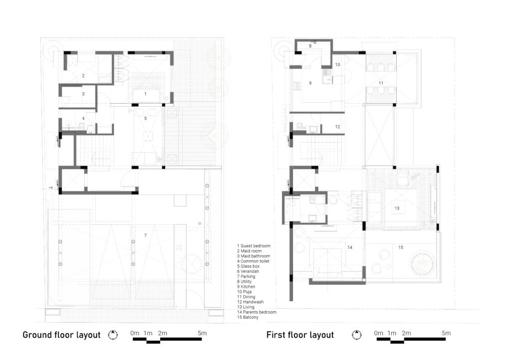
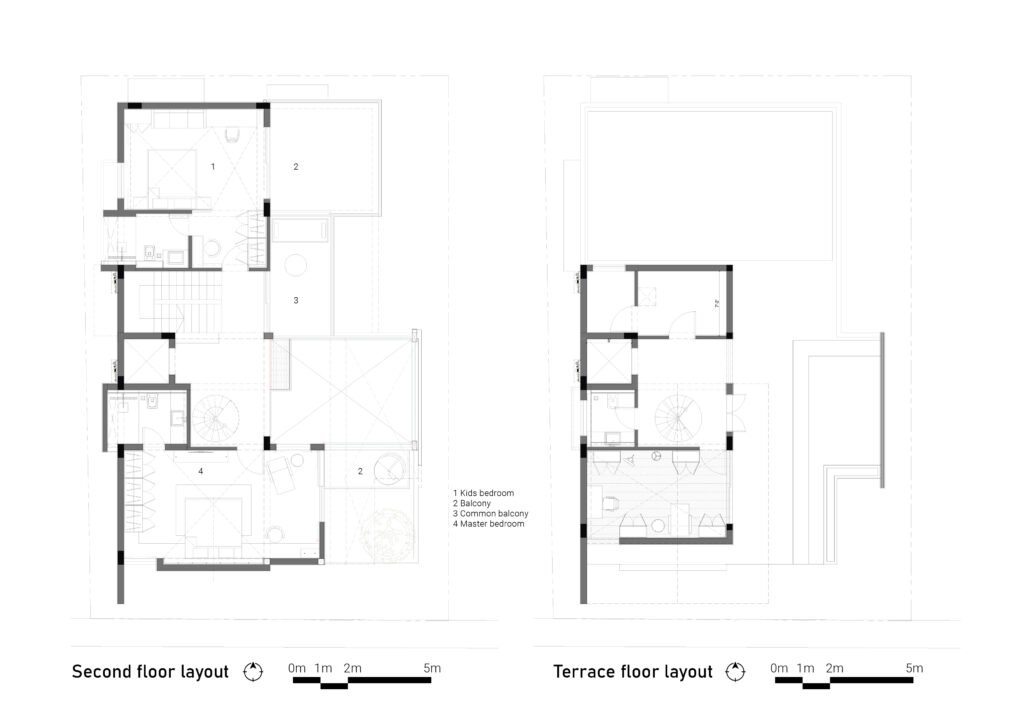
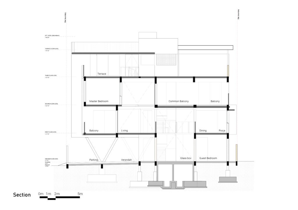
The intension is for the library to not just be a room, but the core architectural element around which the entire house revolves. The spaces open inwards flowing into one another and is cut-off from outside.

Natural light to pours into the spaces through expansive opening, illuminating books shelves across various floors. The home has multiple reading corners making it comfortable to sit and enjoy your book with a cup of coffee anywhere.


Whether you’re entering the living room, kitchen, or even private quarters, the presence of books is always felt, nurturing a home where learning, reflection, and creativity are woven into the fabric of everyday living.
Materials such as wood, stone, and glass harmonize to bring an organic feel to the space, while thoughtful acoustics ensure that the library maintains its quiet, meditative environment.
All the common spaces are wrapped by double height glazing and it overlooks into the internal court maintain privacy at all levels even with the use of expansive glass.

Interiors



Drawings


